Détails de la propriété

16 Rue Sunset

Vaudreuil-Dorion, Montérégie J7V0G1

Maison à paliers multiples | MLS: 18100932


Détails des pièces
Chambre Dimensions Niveau Revêtement
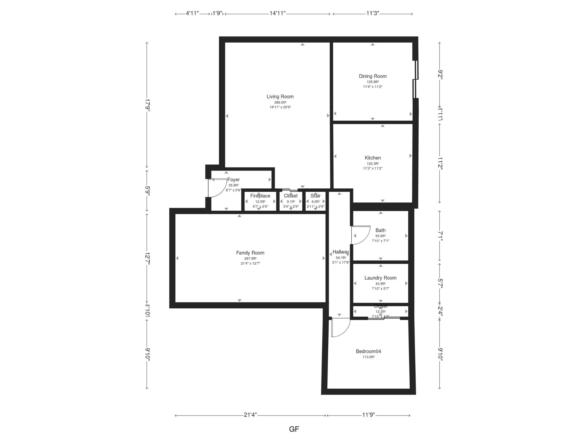
Salon 14.11 x 21.1 P AU Bois
Cuisine 11.4 x 11.6 P AU Céramique
Salle à manger 11.3 x 11.4 P AU Céramique
Salle familiale 21.6 x 12.7 P Rez-de-chaussée Parqueterie
Chambre à coucher 11.9 x 9.10 P Rez-de-chaussée Parqueterie
Salle de bains 7.10 x 7.1 P Rez-de-chaussée Autre
Salle de lavage 8.0 x 5.7 P Rez-de-chaussée Linoléum
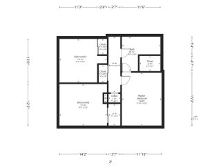
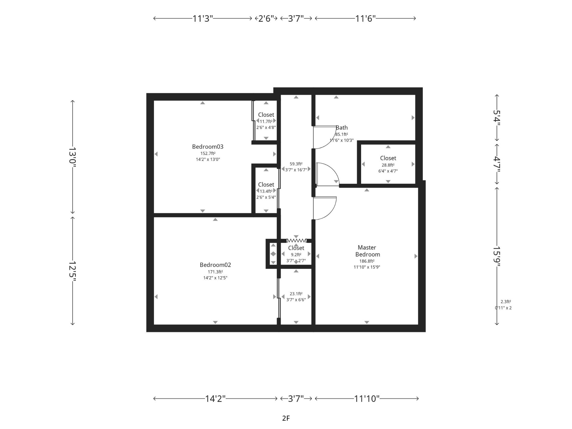
Chambre à coucher principale 11.9 x 15.8 P 2ième étage Tapis
Chambre à coucher 12.5 x 14.2 P 2ième étage Parqueterie
Chambre à coucher 12.9 x 10.9 P 2ième étage Parqueterie
Salle de bains 11.8 x 10.3 P 2ième étage Céramique
Salle de jeux 22.6 x 22.5 P Sous-sol Béton
Sous-sol 6 pieds et plus, Partiellement aménagé
Allée Asphalte
Garage Attaché, Intégré, Simple largeur
Stationnement Au garage, Extérieur
Proximité Autoroute/Voie rapide, École primaire, École secondaire, Garderie/CPE, Golf, Parc-espace vert, Piste cyclable, Ski de fond, Transport en commun
Toiture Bardeaux d'asphalte
Fondation Béton coulé
Aménagement du terrain Clôturé
Piscine Creusée
Salle de bains/salle d'eau Douche indépendante
Énergie pour le chauffage Électricité
Système d'égouts Fosse septique
Foyers-poêles Foyer au bois
Approvisionnement en eau Municipalité
Mode de chauffage Plinthes électriques
Zonage Résidentiel

Spacieuse maison de 4 chambres et 2 salles de bain sur un magnifique terrain de plus de 34 000 pi² à Hudson Acres. Magnifiquement entretenue, cette maison allie charme rustique et confort moderne, avec un rez-de-chaussée à aire ouverte, des accents en bois et une cuisine prête pour le chef. La vaste suite principale et les autres chambres offrent chaleur, luminosité et polyvalence pour la vie familiale. Profitez de la vie à la campagne avec des vues sereines, un jardin privé et une piscine creusée tout en restant près de l'autoroute 40, du Méga Centre Vaudreuil, du Yacht Club, des parcs, des écoles et des sentiers.

Spacieuse maison de 4 chambres sur un magnifique terrain de
plus de 34 000 pi² à Hudson Acres
Magnifiquement entretenue avec un charme extérieur
saisissant
Emplacement élevé et sec dans un quartier prestigieux et
familial
Garage attaché pour une voiture et allée pavée
Charme rustique allié au confort moderne avec un design
réfléchi dans toute la maison

L'agencement à aire ouverte relie harmonieusement le salon,
la salle à manger et la cuisine
Cuisine de rêve pour les chefs avec murs en briques
apparentes, armoires en bois riche et grand îlot en bloc de
boucher
Espace de travail et de rangement généreux avec un
caractère intégré, rendant la préparation des repas un vrai
plaisir
La fluidité entre la cuisine, la salle à manger et le salon
favorise l'interaction avec la famille et les invités
La lumière naturelle inonde les espaces de vie principaux,
mettant en valeur les tons chaleureux, les finitions
soignées et les détails intemporels

Le salon familial au rez-de-chaussée offre un espace
accueillant et chaleureux, centré autour d'une
impressionnante cheminée en briques
Poutres en bois au plafond, parquet et détails soignés
créent une ambiance conviviale
Grande fenêtre panoramique laissant entrer la lumière
naturelle tout en encadrant la vue sereine sur le jardin

Le rez-de-chaussée comprend une salle de bain complète mise
à jour avec meuble-lavabo élégant à un seul lavabo et
douche à l'italienne avec carreaux hexagonaux foncés
saisissants
Chambre supplémentaire avec parquet, grandes fenêtres et
agencement polyvalent -- idéale comme chambre d'invité,
bureau ou salle de jeux
Buanderie pratique située au rez-de-chaussée

La chambre principale spacieuse est un véritable havre de
paix avec grandes fenêtres, vue sur la cime des arbres et
plancher moquetté doux
Deux autres chambres offrent chaleur et charme avec
parquet, grandes fenêtres et agencement flexible
La salle de bain à l'étage combine design classique et
confort moderne avec bain à remous, douche d'angle vitrée,
meuble-lavabo en bois massif et accessoires récents

Le sous-sol vaste et non aménagé offre un potentiel infini
pour une salle de sport, salle multimédia ou espace créatif
Le jardin privé est parfait pour recevoir avec un grand
espace, piscine creusée et terrain clôturé
Aménagement paysager mature, verdure luxuriante et cadre
paisible créent un décor idéal pour les rassemblements
d'été ou la détente

Profitez de la vie à la campagne avec le rythme plus lent
de la vie rurale tout en restant proche de tous les
services essentiels
À quelques minutes de l'autoroute 40, du Méga Centre
Vaudreuil et du centre-ville de Hudson
À proximité des écoles de qualité, garderies, Hudson Yacht
Club, Sandy Beach, piscine communautaire et installations
récréatives
Les amoureux de la nature apprécieront la proximité du
Parc-Nature Harwood, des terrains de golf locaux, camping
et des sentiers pédestres pittoresques
Parfaite combinaison de tranquillité, charme et commo

Inclus : Table de billard au sous-sol, accessoires et queues de billard, plaque de cuisson, four encastré, réfrigérateur, lave-vaisselle, laveuse et sécheuse, gazebo, accessoires de piscine


Emplacement

Cette inscription est présentée en collaboration avec EXP AGENCE IMMOBILIÈRE